Services
Quality Services

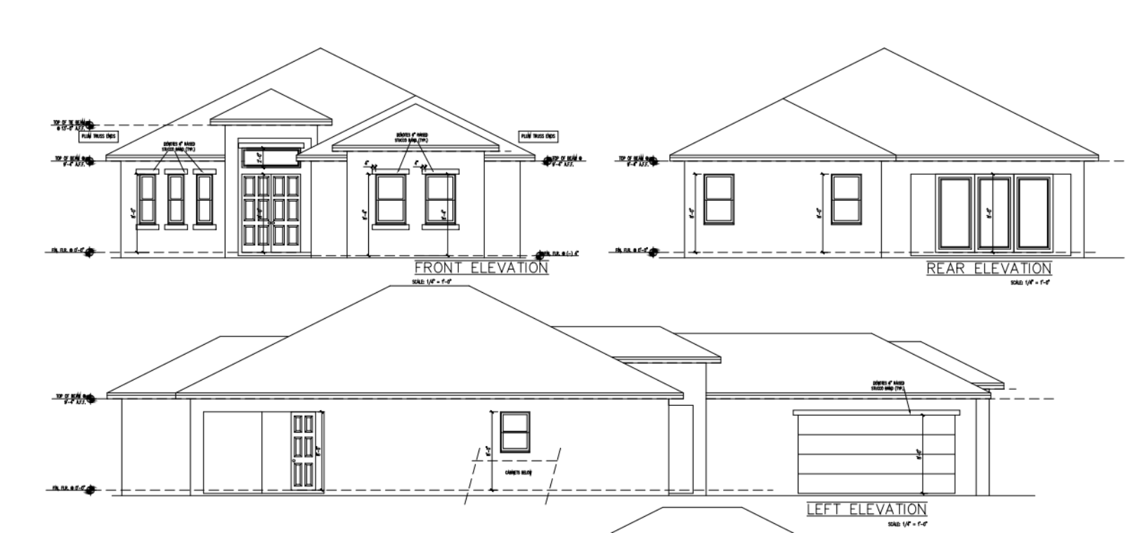
Residential Design and Engineering
Residential designs and construction plans, offering detailed documentation to get ensure building permit and code-compliant project execution.

Screen Enclosures / Pool Cages Engineering
Design and engineering of screen enclosures, ensuring safety, functionality, and aesthetic appeal for outdoor spaces.

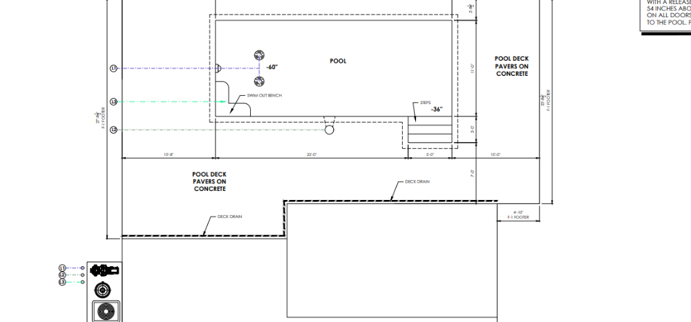
Pool Designs and Engineering
Comprehensive engineering and custom designs for residential swimming pools, ensuring structural integrity and code compliance..

Septic Designs, Applications and Inspections
Comprehensive septic system design, application assistance, and inspection services, ensuring County Health Department effective wastewater management compliance.

Engineering Reviews
Serving drafters, architects, and home builders reviewing construction drawings for necessary corrections, ensuring compliance with project specifications and regulatory standards.

3D Renders
High quality 3D residential renders offering realistic visualizations of interiors, exteriors, and landscapes to enhance project understanding before construction.
Residential Design and Engineering











Our services provide comprehensive residential design solutions paired with precise construction plans for Building Department construction permit approvals. Key offerings include:
- Complete Architectural and Structural Plans: Development of comprehensive architectural and structural plans for residential, commercial, and industrial projects.
- Permitting and Code Compliance: Preparation of detailed plans that adhere to Florida’s building codes to expedite the permitting process.
- Site Plans and Foundation Plans: Creation of customized site and foundation plans to meet the specific requirements of the project and local regulations.
- Construction Documentation and Specifications: Generation of detailed construction documents and technical specifications for contractors and laborers.
- Custom Home Designs: Development of bespoke designs for residences based on the client’s requirements and aesthetic preferences.
- Renovation and Addition Plans: Creation of plans for renovations and extensions of existing residences, tailored to the specifications and desires of the client.
- Floor Plans and Elevations: Preparation of detailed floor plans and elevations that provide a clear and precise view of the proposed design.
- Interior Layout and Space Planning: Services in interior layout and space planning to optimize space utilization and functionality.
- Heating, Ventilation, and Air Conditioning (HVAC) Systems: Expertise in designing and implementing efficient HVAC systems that ensure optimal indoor air quality and comfort for residential properties. This includes load calculations, duct design, and system selection tailored to the specific needs of each home.
- Comprehensive Electrical Systems Design: Provision of thorough electrical system designs that encompass lighting, power distribution, and safety features. Our services ensure compliance with local codes and regulations while prioritizing safety and efficiency in every project.
Residential Plumbing Design: Development of complete plumbing system designs that include water supply, drainage, and waste management solutions. Our designs focus on functionality, compliance with building codes, and water conservation.
Permit-Ready Documentation
Ready-to-submit documents prepared according to local code requirements, streamlining the approval process.
Screen Enclosures / Pool Cages Engineering









- Screen Protection Design: Offer custom solutions for the construction of screens that shield patios and outdoor areas from insects and debris, enhancing the outdoor experience.
- Pool Cage Design: Provide design services for pool cages that comply with safety codes, optimizing both functionality and aesthetics.
- Site Assessment: Conduct topographical evaluations and site analyses to determine the best locations and designs for screen structures and pool cages, taking into account environmental factors and local regulations.
- Structural Optimization: Ensure that the designs of screens and cages withstand Florida’s climatic conditions, including strong winds and storms, through the use of structural modeling software.
- Material Consultation: Offer recommendations on the best materials to utilize, ensuring durability, low maintenance, and regulatory compliance.
- Permit Planning: Assist clients in obtaining the necessary permits for construction, ensuring that all designs meet local and state regulations.
- Technical Documentation: Provide technical drawings and construction details for contractors, facilitating the installation process.
- Inspection and Compliance: Perform inspections to ensure that installations meet established quality and safety standards.
Pool Designs and Engineering







Our team provides a comprehensive range of services for the design and engineering of residential and commercial swimming pools, ensuring the highest standards of quality, safety, and aesthetic appeal. Our services include:
- Custom Pool Design and Concept Development
Tailored pool designs that reflect your unique vision, balancing aesthetics with functionality, and adapting to any landscape and architectural style. - Structural Engineering and Analysis
Professional engineering services that ensure structural integrity and long-lasting performance, taking into account soil conditions, load requirements, and safety codes specific to Florida. - Permitting and Code Compliance
Expertise in navigating local building codes and obtaining necessary permits, ensuring all pool designs meet regulatory standards and legal requirements. - Hydraulic and Filtration System Design
Precision design of efficient hydraulic and filtration systems that optimize water flow, energy use, and maintenance ease, while maintaining the highest water quality standards. - Renovation and Retrofitting
Engineering assessments and redesign services for pool renovation projects, bringing outdated pools up to modern standards of safety, efficiency, and style. - Construction Oversight and Quality Assurance
Project management and oversight to ensure that pool construction adheres to design specifications, safety regulations, and quality standards from inception to completion.
Septic Designs, Applications and Inspections







We offer specialized services for on-site septic systems, focusing on comprehensive design, application processes, and thorough inspections to ensure efficiency, compliance, and longevity. Our services include:
- Custom Septic System Design
Septic solutions that align with property requirements, soil conditions, and regulatory standards, supporting sustainable wastewater management. - Permit Application and Approval Assistance
Guidance through the permitting process, including preparation and submission of necessary documentation to expedite approvals in compliance with local codes. - Soil and Site Evaluations
In-depth assessments of soil characteristics, water table levels, and property layout to determine optimal system placement and design. - System Inspections and Compliance Checks
Regular inspections to ensure system compliance with health and environmental standards, identifying potential issues early to prevent costly repairs. - Maintenance and Performance Assessments
Ongoing evaluations and consultations for optimal system performance, enhancing longevity and operational reliability. - Repair and Replacement Consultation
Professional recommendations for repair or system updates as needed, maintaining compliance and system efficiency over time.
Engineering Reviews


Also known as “red line service” generally refers to the process of reviewing and marking up construction or design drawings for corrections, revisions, or improvements. Here’s a breakdown of what we offer:
Reviewing Plans and Drawings: Going over initial designs and construction documents, identifying any inconsistencies, issues, or areas for clarification.
Marking Adjustments: We will mark changes directly on the drawings in red ink or electronically. These “redlines” are clear indications of modifications that need to be made, such as dimension adjustments, annotations, or design changes.
Quality Control and Compliance: The redlining process helps ensure that all plans comply with project specifications, regulatory standards, and quality requirements.
Communicating with the Design Team: Red line service teams work closely with designers and project managers to convey feedback and suggest corrections in a structured way, so final drawings align closely with project goals.
3D Renders







Our 3D rendering services bring residential projects to life with high-quality, realistic visuals that showcase every detail, enhancing design understanding and project communication. Our services include:
- Photorealistic Exterior and Interior Renders
Accurate, lifelike 3D representations of both exterior and interior spaces, capturing textures, lighting, and architectural elements to visualize the final project. - Conceptual Visualization and Design Refinement
Dynamic 3D visualizations that allow clients and stakeholders to explore design concepts and refine details before construction begins. - Detailed Landscaping and Site Context Rendering
Full-property renders, including landscaping, outdoor elements, and environmental context, for a complete view of the residential layout in its surroundings. - Customizable Virtual Walkthroughs
Immersive 3D walkthroughs to provide an interactive, detailed preview of each space, enhancing client engagement and decision-making. - High-Quality 3D Floor Plans
Clear, detailed 3D floor plans that communicate spatial relationships and layout effectively, helping clients understand flow and functionality.



